Il Museo della Lingua Italiana è un progetto di 4 milioni e mezzo di euro di investimento ministeriale. La nascente istituzione culturale verrà collocata in posizione strategica, nel centro storico di Firenze, nell’ex Monastero Nuovo nel Complesso monumentale di Santa Maria Novella.
In occasione dei settecento anni dalla morte del sommo poeta Dante Alighieri si sente imperdonabile la mancanza di un centro interamente dedicato alla nostra lingua e nasce così, stando alle parole del sindaco di Firenze Nardella, il “progetto più concreto e articolato delle celebrazioni” nonché il “segno permanente” dell’anno commemorativo.
Il Museo della Lingua italiana: l’idea

L’idea è quella di creare una vera e propria istituzione culturale capace di raccontare la nascita e lo sviluppo della lingua italiana attraverso i secoli, a partire proprio dalle prime parole in volgare fino a giungere ai nostri giorni, alle nostre ‘espressioni digitalizzate’ e ai nostri meme.
Un viaggio nella storia con soste obbligate a commemorare tutte quelle celebri personalità che della lingua italiana hanno fatto il prestigio: da Dante, Petrarca e Boccaccio, passando per Machiavelli, Leopardi, Manzoni per giungere fino a Calvino e Sciascia, solo per citarne alcuni.
È proprio in occasione delle commemorazioni del primo cittadino fiorentino che il capoluogo toscano si candida a capofila delle celebrazioni nazionali e inaugura un’iniziativa destinata a restare e a colmare la mancanza di un’istituzione capace di riconoscere e valorizzare il nostro idioma e la sua storia. E come spiega il linguista e filologo Luca Serianni, non si tratta di sola letteratura.
Leggi anche: A Milano nasce il Meet, primo centro internazionale di cultura digitale in Italia
Il Museo della Lingua italiana: il progetto
Perché Firenze? Franceschini, il ministro dei Beni e delle attività culturali e del turismo, commenta:
È stato naturale che nel dibattito che va avanti da molti anni nel nostro Paese sulla mancanza di un museo della lingua italiana, nel momento in cui lo Stato ha deciso di dare una risposta positiva, la scelta non poteva che essere Firenze per tantissime ragioni.
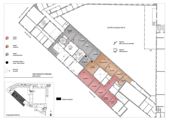
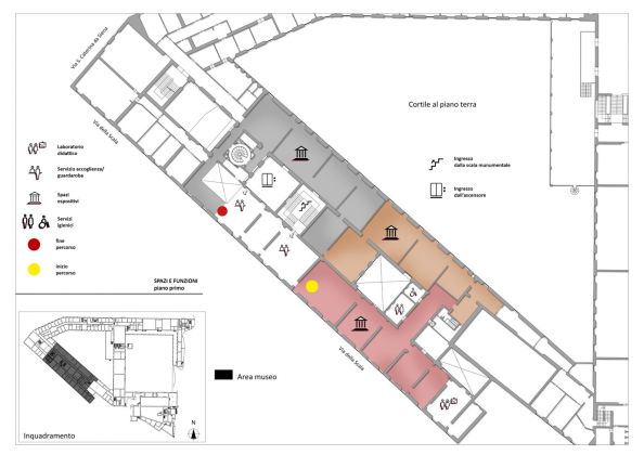
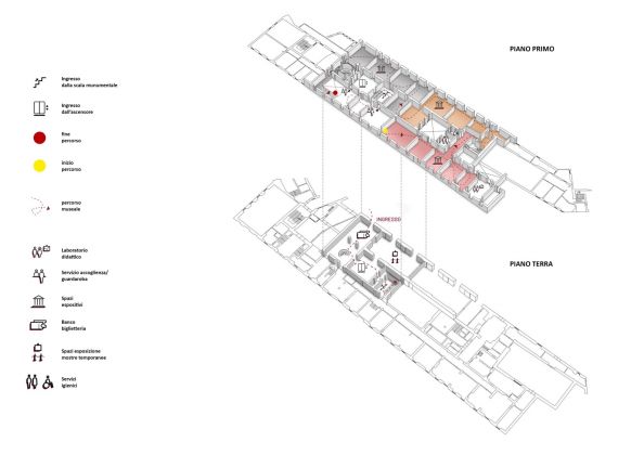
Su due dei quattro piani dell’ex Monastero Nuovo, situato fra via Santa Caterina e via della Scala, per un totale di 2000 metri quadrati, si svilupperà il percorso espositivo del Museo della Lingua italiana.
I 600 metri quadrati del piano terra sarebbero da destinare ai servizi di accoglienza e alle esposizioni temporanee, mentre nel piazzale interno si lascerebbe spazio a servizio di caffetteria e a un’area relax. I soffitti affrescati del piano superiore farebbero invece da cielo ai restanti 1400 metri quadrati dedicati all’allestimento della collezione permanente.
L’inizio dei lavori, che includeranno anche aree da dedicare a laboratori e didattica nonché a una libreria e a un guardaroba, è previsto per il 2021.
Leggi anche: Le 10 mostre da vedere nel weekend da Milano a Napoli
Il Museo della Lingua italiana: uno dei centri culturali più grandi d’Europa

Un progetto ambizioso che, destinato a essere uno dei centri culturali più grandi d’Europa, celebrerà le nozze tra un passato unico, rigoglioso e di prestigio, quello di una lingua colta e al servizio di brillanti menti, e un futuro che si auspica all’altezza del consorte, capace di fornire mezzi innovativi per arrivare al grande pubblico e rendere quindi accessibile a tutti, italiani e non, l’inestimabile patrimonio linguistico e letterario di cui siamo eredi. Sempre Franceschini:
Sta lavorando già da tempo un comitato scientifico di alto livello per l’impostazione del museo perché insieme al recupero strutturale dell’immobile, c’è anche l’esigenza di creare un museo proiettato sul futuro che conservi la memoria, ma che anche attraverso le nuove tecnologie consenta di essere accessibile, didattico, adatto ai ragazzi, agli studiosi, quindi davvero un progetto straordinario.
Quello menzionato dal ministro è un comitato scientifico composto da docenti, linguisti ed esperti attivi in istituzioni di alto profilo impegnate nella valorizzazione e promozione della lingua italiana nel mondo, dall’Accademia dei Lincei, l’Accademia della Crusca, Treccani, l’Istituto della Enciclopedia italiana, la Società Dante Alighieri, l’Associazione per la Storia della lingua italiana, per finire includendo vari soggetti della comunità fiorentina, fra cui Comune, Università, Soprintendenza, Istituto centrale per il catalogo unico delle biblioteche italiane e Biblioteca Angelica.
Leggi anche: La ‘Cappella Sistina degli antichi’, l’arte preistorica nascosta nella Foresta amazzonica
Encomio della lingua italiana e riqualifica di un luogo di notevole interesse
La proposta del sindaco Dario Nardella e dell’assessore alla cultura Tommaso Sacchi, fiziato con circa 4,5 milioni di euro nell’ambito del Piano Strategico “Grandi Progetti Beni Culturali”, incontra l’entusiasmo del ministro Franceschini, quindi del MiBact e del Presidente del Consiglio Giuseppe Conte.
La realizzazione dell’istituzione passa attraverso quel progetto di riqualificazione del complesso di Santa Maria Novella già avviata nel 2016, al ritorno dello storico immobile nelle mani dell’amministrazione comunale. Il progetto, quindi, non è solo encomio della lingua italiana, ma attraverso il recupero e la valorizzazione di un luogo di notevole interesse, rilancia l’Italia nel mondo, ancora oggi, un fervente e vivo centro di arte e cultura.







